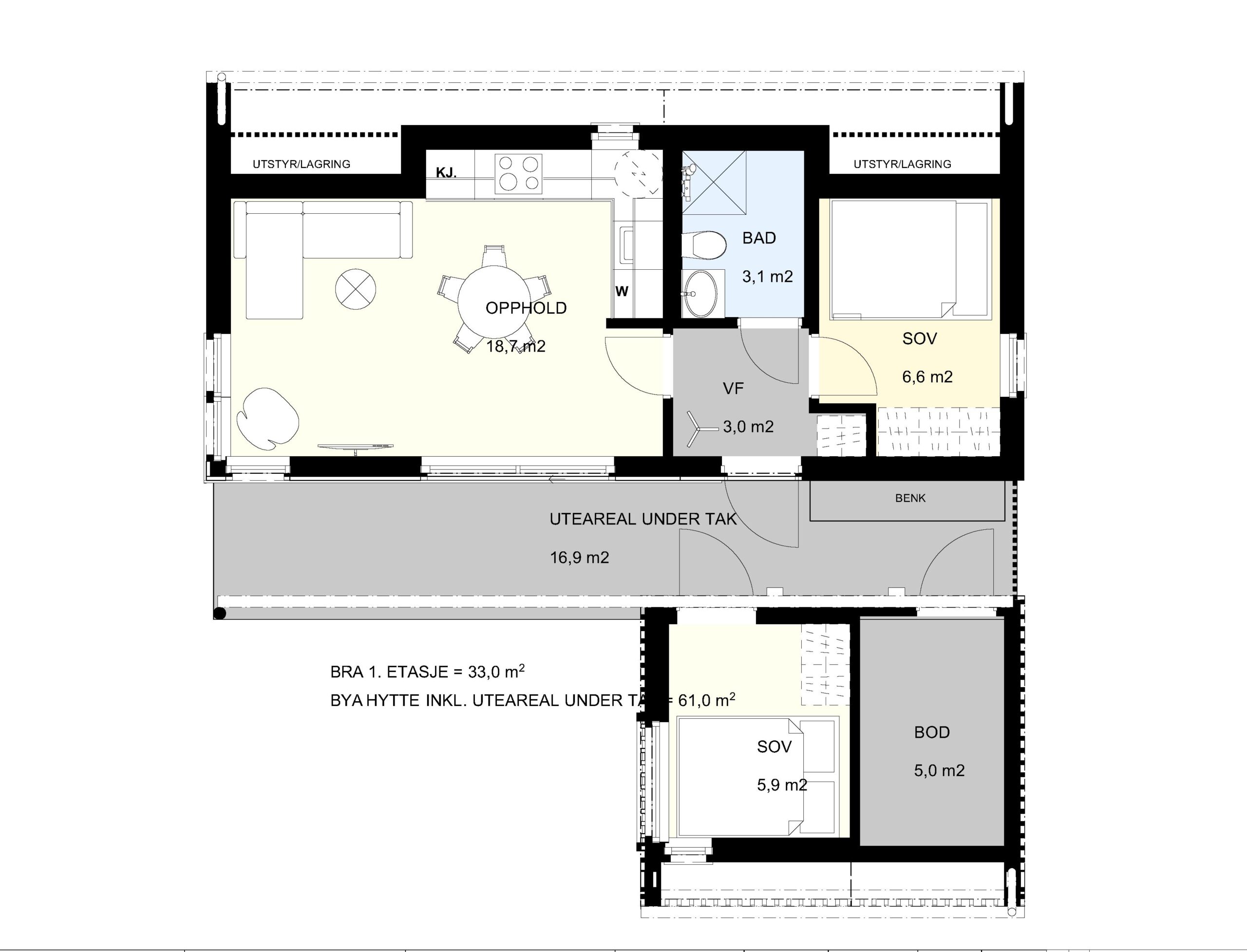
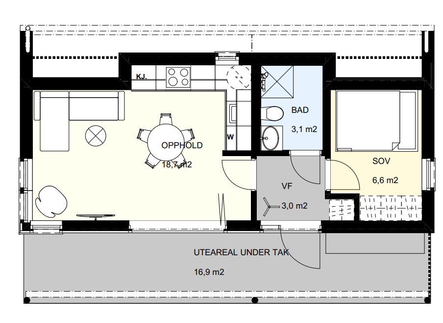
Falun er vår minste hyttemodell, men opplevelsen er alt annet enn liten. Her får du en moderne kompakthytte som føles romslig, lys og innbydende. Hver kvadratmeter er nøye utnyttet, slik at du kan leve stort– selv i et mindre format.
Mange beskriver Falun som selve definisjonen av det ekte hyttelivet: intim, varm og tett på naturen. Et sted for rolige morgener, dager ute i naturen og tid til å skape minner som varer.
