Skoglia er en kompakthytte med ekstra romfølelse. Den sjenerøse takhøyden og de store vindusflatene skaper et lyst, åpent og innbydende oppholdsrom – der naturen blir en naturlig del av interiøret.
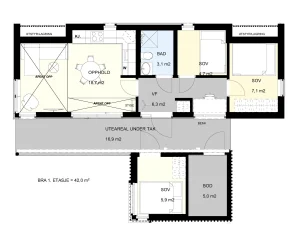
Skoglia er nøye planlagt for et komfortabelt og funksjonelt hytteliv. Med tre soverom, romslig hems, vindfang, bad og åpen stue- og kjøkkenløsning, får familien alt de trenger – uten at det føles trangt.
Dette er hytta der både store og små finner sin plass. Her kan du senke skuldrene og nyte roen.
